Is your workspace setting you up for success? In today’s competitive business world, creating a smart, employee-centric space isn't just a trend—it's a necessity for productivity and future success. Recent data underscores this need, revealing a direct positive link between top performers and high-performing workplace environments. For instance, high-performing workplaces see a remarkable 94% of employees enhance productivity and work quality when given the freedom to choose where they work within the office.
But what exactly constitutes a smarter workspace, and how can you create one that fosters both productivity and satisfaction? This guide will explore the essential characteristics of a smarter workspace and delve into real-world application to help you create an environment that truly supports your team.
A smarter workspace must be aware of the current, evolving trends that affect the workplace. The corporate design industry is constantly evolving to meet the demands of the workforce. As leaders in corporate design, we’ve identified three essential characteristics of a smarter workspace:
Adaptable
A workspace must be designed with adaptable, moving elements. One of the top trends seen at NeoCon (interior furniture expo) in 2017, was the idea of modularity. The core benefits of modular designs center around the ability to “future proof” your office from advancements in technologies, cultures and work styles. This can lead to cost savings, space flexibility and a better workspace strategy.
Creating a flexible, open layout will accommodate these future needs. An adaptable workspace might include demountable walls, moveable power sources, or reconfigurable furniture.
Technological
Technology is at the heart of today’s business world. The need for basic power and online access is required for videoconferencing tools, interactive displays, and shareable documents. Technology enables collaboration among employees, which translates to better business practices and increased profits.
A smarter workspace will accommodate technological innovations through efficient planning and furniture decisions. Smart furnishings will allow employees to connect with each other, share and showcase information, and adapt to accommodate technological components.
Efficient
An efficient workspace utilizes space by removing wasted square footage. A smart plan will reengineer a problematic space into a workable solution. Business owners often run into space efficiency issues when square footage is limited. One way to combat space constraints is to outsource additional space. Corporate warehousing will enable business owners to remove seasonal or occasional-access items from their offices, which allows room for growth.
A reengineered, efficient workspace will include areas designed to accommodate your targeted business goals. These designated areas are derived from seven workspaces, including co-working, collaboration, concentration, social, private, personal, and in-between spaces.
Beyond the basic elements of functionality and design is execution. Traditional office layouts have centered around individual workspaces, which lack the concept of flexibility and collaboration. To illustrate these issues, we'll examine a recent case study.

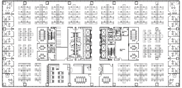
The initial floor plan was designed to hold a maximum of 200 employees. This layout was not optimal for growth, with limited communal areas and cubicles that presented both visual and acoustic distractions. This traditional setup hindered collaboration and did not utilize space efficiently.

After researching the company's needs, we reengineered the space to support growth, ergonomics, and modularity. The new design accommodates 300 employees comfortably. Key improvements include:
- Increased Capacity: Enhanced layout supports 300 employees, allowing for future growth.
- Flexible Workspaces: Added workable hallways and in-between areas to increase chance encounters and foster collaboration.
- Collaborative Areas: Meeting rooms are equipped with advanced technology, including digital monitors and interactive whiteboards, to facilitate teamwork and communication.
- Individualized Workstations: Customized workstations incorporate the latest tech solutions to boost team productivity and adaptability.
Is your workspace equipped to handle the demands of modern work life? By implementing the principles of a smarter workspace—adaptability, technology, and efficiency—you can ensure your workspace meets the diverse needs of your employees, leading to significant improvements in productivity and satisfaction.
Ready to transform your workspace into a smarter, more effective environment? Contact us today for a consultation to learn more about implementing these principles in your office. Let’s work together to design a space that not only meets your current needs but also prepares you for future success.
Updated 08/10/2024
